Week 5: 3D Scanning and Printing¶

Week 5 Assignment:
-
Group Assignment
- Test the design rules for your 3D printer(s)
-
Individual Assignment
- Design, document, and 3D print an object that could not be made subtractively (small, few cm3, limited by printer time)
- 3D scan an object (and optionally print it)
GROUP ASSIGNMENT¶
Chai Huo Week 5 - Group Assignment
3D Printer Overview: Bambu Lab A1 Mini¶

Chai Huo Maker Space is equipped with a Bambu Lab A1 Mini 3D printer and the Automatic Material System (AMS) Lite.
Source: wiki.bambulab.com
Bambu Lab A1 Mini Information
- Build Volume : 180 x 180 x 180 mm³
- Dimensions : 347 x 315 x 365 mm³
- Net Weight : 5.5 kg
- Tool Head
- Nozzle : Stainless Steel
- Nozzle Diameter : 0.4mm
- Max Temperature : 300 ℃
- Heatbed :
- Build Plate : Bambu Textured PEI Plate
- Max Temperature : 80 ℃
- Supported Filament (ideal): PLA, PETG, TPU, PVA
- Camera : Low Rate Camera (up to1080P) Timelapse Supported
- Display : 2.4 inches 320*240 IPS Touch Screen
- Connectivity : Wi-Fi, Bambu-Bus
- Storage : Micro SD Card
- Motion Controller : Dual-Core Cortex M4
- Cooling : Closed Loop Control
- Input Voltage : 100-240 VAC, 50/60 Hz
- Max Power : 150 W
- Slicer : Bambu Studio
Source: wiki.bambulab.com
Automated Material System (AMS) Lite Information
Developed by Bambu Lab, the AMS enables multi-color and multi-material printing. It is designed exclusively for the A1 series and is not compatible with the X1 or P1 series printers. It supports printing in up to four colors (four slots).
- Supported Filaments : PLA, PETG,ASA, PET, PA, PC, PVA (dry), BVOH (dry), PP, POM, HIPS and Bambu PLA-CF
- Filament Diameter : 1.75 mm
- Product Size : 397 x 208 x 342 mm³
- Product Weight : 1.6 kg
- Supported Spool Size : width: 40-68 mm, inner diameter: 53-58 mm
Testing Design Rules for Bambu Lab A1 Mini¶

We tested 5 design rules and these are the results:
1. Angle Test¶

The result: Angles from 90° to 20° printed well. However, the 10° and 0° angles produced “spaghetti” underneath the slanted surface.
2. Bridging Test¶

The result: All bridges from 2mm to 20mm are strong, with no “spaghetti” at all.
3. Clearance Test¶

The result: Clearances from 0.4mm to 1mm can move freely along the track. The 0.3mm clearance can only move halfway. The 0.1mm and 0.2mm clearances cannot move at all.

This was my first attempt at using tree supports in 3D printing.
4. Wall Thickness Test¶

The result: Since the nozzle diameter is 0.4mm, the minimum printable wall thickness is 0.4 mm. Walls with thicknesses of 0.1mm, 0.2mm, and 0.3mm did not print.
5. Overhang Test¶

The result: A 1mm overhang still looks fine. Overhangs from 2mm to 5mm look slightly rough. Overhangs from 6mm to 10mm look very stringy and have a lot of “spaghetti.”
INDIVIDUAL ASSIGNMENT¶
3D Print¶
In this part of the project, we were required to design and print an object that cannot be made using subtractive methods. I decided to create a print-in-place hinge because this type of mechanism cannot be produced (or very difficult to produce) using subtractive techniques.
Information
In this project, I used the Bambu Lab A1 Mini for 3D printing and Bambu Studio as the slicing software. Bambu Studio is an open-source, feature-rich slicer with advanced capabilities for preparing 3D models for printing.
Design 1: Horse¶
Since 2026 is the Year of the Horse, I wanted to 3D print a horse figurine and place it on my work table at Chai Huo Maker Space.
Here’s the 3D printing process:
-
I searched for a horse image on Pinterest:
Source: pinterest.com -
I traced the image, adjusted it slightly, and added a tail using Adobe Illustrator:

-
I used MakerLab Flexi Toy Maker to add hinges so the horse can bend. This tool can be found in the Bambu Studio app (the same app used as the slicer). It is very easy to use and beginner-friendly:

-
There are three types of hinges available, and I tried using all of them on different parts of the horse’s body. I set the horse thickness to 8mm.

-
After downloading the file, it was automatically sent to the
Preparetab. I did not use any supports for this project. The filament used is PLA (black color). The print took 56 minutes and 30 seconds.

The following video shows the printing process:
-
Here is the final result:


The hinge mechanism can be seen here:
Design 2a: “Emily’s Desk” Signage (old)¶
Several days ago, I visited the Bambu Lab 3D Printing Flagship Store in Shenzhen to find inspiration, and I came across this signage. Inspired by it, I decided to create a desk sign that reads “Emily’s Desk” to personalize my workspace.

3D Printing Documentation:
-
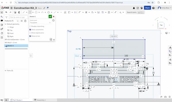
I created the 3D design using Onshape. First, I drew the 2D shapes, then extruded them to create the 3D model.


-
After that, I designed a hinge so that the object can rotate and stand upright.

-
Next, I exported the STL file and imported it to Bambu Studio for slicing. Next, I sent the file to the Bambu Lab A1 mini for printing. I used only one color (black). The print took 37 minutes and 59 seconds to complete.

-
Here is the final result:
Old Version
This design failed because the signage could not stand upright; it kept falling over. The hinge clearance was insufficient. In addition, the words “Emily’s Desk” were not very clear and not easy to read. Therefore, I revised and improved the design in the next version (Design 2b: “Emily’s Desk” Signage – New).
Design 2b: “Emily’s Desk” Signage (new)¶
New Version
This version is an improved iteration of the previous design. I also wanted to experiment with using multiple colors in a single print, which also enhance the readability.
Revised 3D Printing Documentation:
-
I revised the 3D design in Onshape. I increased the gap between the front and back parts and enlarged the hinge diameter to make it stronger and less likely to break. I also extruded the text “Emily’s Desk” on the front part.
-
I exported the STL file and imported it into Bambu Studio for slicing. I used the Paint tool to add different colors. The tool is very easy to use: you simply add more filament, select the area you want to change, and apply the color. In this project, I used the Height Range Tool.
-
I then sent the file to the Bambu Lab A1 mini for printing. The printing process took 40 minutes and 39 seconds.
Below is the multi-color printing process:
-
Here is the final result:
Below is a comparison between the old and the new versions:
Download the 3D model:
STL File - Desk Sign or open it with the OnShape link - Desk Sign
When my friend who sits in front of me saw the desk sign, she also asked me to make one for her with her name on it ☺
3D Scan¶
Luma 3D Capture¶
Luma 3D Capture
Luma 3D Capture is a mobile app that allows you to create realistic 3D models of real-world objects and environments using your phone’s camera and AI.
How to Set Up Luma 3D Capture on iPhone 14: (Tested on iPhone 14)
-
Download the Luma 3D Capture app from the App Store

-
Launch the app and sign in with your Google or Apple account

-
Tap the “+” button at the bottom of the screen to start a new capture

-
Begin scanning your object by moving around it slowly

Luma 3D Capture converts videos or photos into interactive 3D scenes. The process works as follows:
- Walk around an object while scanning it with the app
- The app records the object from multiple angles
- AI processes the captured data into a lifelike 3D model
- The final model can be viewed from any angle
Luma 3D Capture does not require LiDAR and works on iPhone 11 or newer.

Example: Scanning a Horse Doll
- I placed a horse doll on an outdoor bench and scanned it using the Luma AI app in natural light
- The app recorded the object from multiple angles
- The AI processed the scan into a realistic 3D model (this took about 1 hour)
- I was able to view the final model from every angle
Here’s the result:
Note
I didn’t manage to convert it into STL file for 3D printing.