1. Parametric Kit Design

Designing a fully parametric kit in SolidWorks to adapt dimensions easily for laser cutting.

Using Equations in SolidWorks

The most important tool used for this assignment was the Equations and Global Variables manager in SolidWorks. This allowed me to create a fully parametric design where modifying a single value updates the entire model automatically.

How to access Equations

  1. Open SolidWorks and create a new part.
  2. Go to Tools in the top menu.
  3. Select Equations near the bottom.
SolidWorks Equations menu
Figure 01. Accessing the Equations tool in SolidWorks.

Global Variables

Inside the Equations manager, I defined multiple Global Variables by assigning names and numerical values. These variables control the entire geometry.

  • Material thickness
  • Cross length
  • Edge cut length
  • Number of slots
SolidWorks Global Variables
Figure 02. Declaring global variables for parametric control.

Parts of the Kit

  • Electronics: Mounting and spacing considerations
  • Mechanics: Structural connections and slots
  • Code: Future integration for automation
  • Testing: Fit validation after cutting

2. Exporting Files for Laser Cutting

Preparing DXF files compatible with laser cutter software. Below you can switch between the three different SolidWorks parts used in this assignment.

DXF Export Workflow

  1. Save the SolidWorks part.
  2. Create a new Drawing.
  3. Insert the part using Model View.
  4. Adjust scale as needed.
  5. Go to Save As and select .DXF.

Piece 1 — Hexagon

Parametric Hexagonal piece controlled by global variables.

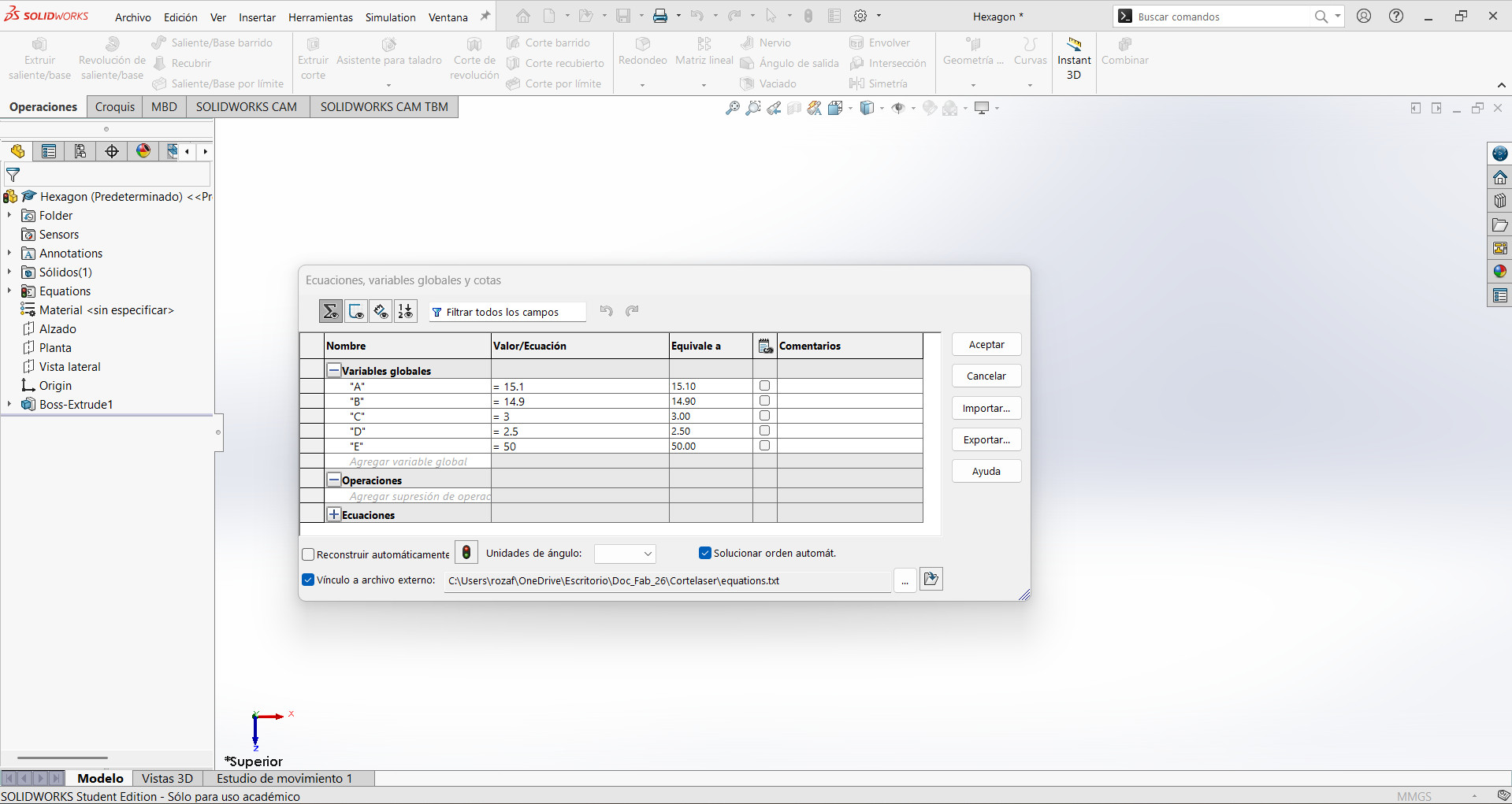
SolidWorks Drawing Piece 1
Drawing view on Solidworks with the global variables.
Download .DXF

4. SmartCarve Software

Laser cutter control software.

The laser cutter is operated using SmartCarve. This software only runs if the USB security dongle is connected.

Importing the Design

  1. Open SmartCarve.
  2. Go to File → Import.
  3. Select the DXF file.

5. Vinyl Cutter

Preparing vector files for vinyl cutting.

For the vinyl cutting task, I selected images of a cat and a shark. These images were vectorized in Inkscape, following the workflow documented in Week 2.

The vinyl cutter used for this assignment was the Brother ScanNCut Mini Plotter.

Vinyl cutter Brother ScanNCut
Brother ScanNCut Mini Plotter used for vinyl cutting.

For more information visit the class page