Computer Controlled Machining

Task:-

Group assignment: Do your lab's safety training.
Test runout, alignment, fixturing, speeds, feeds, materials and toolpaths for your machine.

Individual assignments: Make (design+mill+assemble) something big


GROUP ASSIGNMENT You can view our group assignment here!

Task overview

This week's individual assignment involves designing and fabricating a furniture piece using the CNC ShopBot.

  • Material: 8 ft x 4 ft plywood sheet; Cardboard sheets for prototype testing.
  • Machines Used: CNC ShopBot for final plywood cutting; Trotec Laser Cutter for cardboard prototype.

  • One important constraint, and a key learning, was that we could not use fasteners like screws or nails. All the parts had to be assembled using only joints.

    1

    Design Concept

    I wanted to design a Charukasera-style furniture piece where kids( not just kids, you can too) can lie down, lean back, and relax comfortably. Since it is meant for resting, I wanted the furniture to feel warm, safe, and full of affection.

    I really like how elephants show love. They gently lean their heads on each other and twist their trunks together in a caring way. That moment feels calm, protective, and soft — exactly the feeling I wanted children to experience while using this furniture.

    Form development

    The legs of the chair are inspired by the curved shape of an elephant's trunk.
    These trunk-like forms extend and connect to the other leg and the footrest, visually representing two elephants standing close with their trunks twisted together.

    I believe this connection provides structural support and also conveys a sense of bonding, calmness, and emotional comfort through the design.

    1

    Designing the Model in Fusion 360

    I created the furniture model in Fusion 360 and worked on making it parametric so it could adapt to different machines and materials. This was the most challenging part of the process.

    Before machining on the ShopBot, we produced a test model using cardboard on the Trotec laser cutter, which is why the material thickness should be in parametic. To manage this, I made the material thickness parametric in Fusion. This allows me to change the thickness anytime without disturbing the overall design.

    However, even though I added parameters for other dimensions, some relationships were not properly constrained. Because of this, changing parameter values does not scale the entire structure correctly.

    So whenever I need to resize the full model, I use the Scale tool to adjust it proportionally.

    Press Pull

    Press Q, select a face, and drag it inward to remove material or outward to add material.

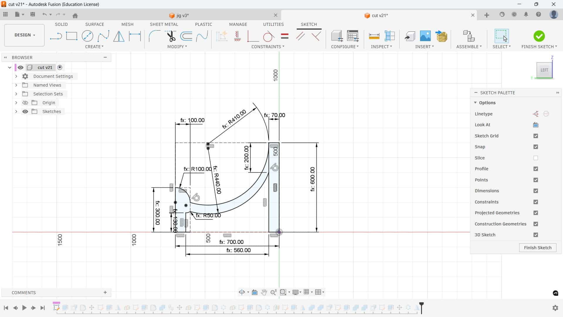
    The curved part and legs were too thin to support the chair properly, so I used Press Pull to make them thicker and stronger.

    To make the slots on the curved part, I drew an arc between the legs and created a 45 mm curved slot. The slot width was set to material thickness minus 0.1 mm clearance. Using a circular pattern, I made 9 slots along the curve, and added 35 mm slots at the bottom of the legs.

    2

    Laser cutting - joinery test

    Before cutting the final plywood model on the ShopBot, tested the design using cardboard on the Trotec laser cutter. To check the fit of joints, dimensions, and overall assembly. This helped identify design errors early, saved material, reduced machining time, and prevented costly mistakes on the final plywood.

    After measuring the cardboard at multiple points, I calculated an average thickness of 2.94 mm. I used this value to find the scale ratio for reducing the model from 12 mm to 2.94 mm. The calculated scale factor was entered into the Scale tool in Fusion 360, and the thickness parameter was then adjusted to 3 mm.

    3

    CAM: V- Curve

    We used VCarve software to perform the CAM process and generate the toolpaths for CNC machining.

    In VCarve, all vector sketches need to be joined and closed because toolpaths follow the vector boundaries.
    For that click on each shapes, and check if it has closed pink dotted boundaries. If not, has to join the vector using "join vector tool"

    join vector

    used to join separate lines, arcs, or curves into one continuous closed shape. Combines broken or separate vector segments and closes gaps between lines.

    Fixing the material to the sacrificial layer(bed) is very important before machining. If it is not secured properly, the material can move due to machine vibrations, which affects cutting accuracy and can even break the tool. It may also cause rough edges or the piece lifting during cutting. The sacrificial layer also protects the machine bed when the tool goes slightly deeper than the material.

    To fix the material properly, we plan the drill holes in the CAM software itself. This is safer than drilling manually because we may not know where the internal cut pieces are located, and wrong drilling can damage endmill.

    Drilling toolpath

    We mark circles in the file where screws are needed and generate drill paths using the Drilling toolpath with a specific cut depth. As i gave 4.5mm as cut depth

    Design Files

  • 3d model
  • DXf
  • CAM: V-curve